大邑淘房网 > 楼盘展示 > 浏览楼盘

恒大山水城

恒大山水城

售罄

当前得分:7.71次点评我要点评更新:2017-08-29

大邑淘房网微信客服

扫描右侧客服微信入楼盘微信群→
点击查看大邑淘房网微博
业主QQ群: 41353911

首页 详细信息 房价走势 楼盘动态 户型图 楼盘相册 地图交通 楼盘评价
淘房推荐:

售楼地址:大邑县晋原镇凤凰村

参考售价:7800元/平方米

  • 开盘时间:2013-6-29开盘详情
  • 入住时间:2012-12-01入住详情
  • 物业类型:普通住宅, 别墅
  • 交付标准:毛坯房
  • 开 发 商:恒大地产集团成都有限公司

咨询电话:028-88269888

(您可以这样说:“您好,我从大邑淘房网看到楼盘信息,请问...”,部分楼盘将有额外优惠)

已有人意向登记 人次关注,本月人次

楼盘参数

恒大山水城详细参数

楼盘动态

恒大山水城最新动态,导购信息 更多>>

大邑全面铺开恒大山水城违建专项治理工作

近期大邑办针对恒大山水城部分业主擅自违规开挖、违规打井、违规搭建、违规施工等突出问题,组织多部门会同小区物管人员,对小区业...[更多]

价格走势

恒大山水城历史价格分析 历史价格走势>>

目前别墅均价7800元/㎡  

楼盘位置

恒大山水城周边交通、区位、配套情况查看大地图及详情>>

地址:大邑县晋原镇凤凰村

公交:12路

电话:028-88269888

交通:成温邛高速,成蒲铁路

教育:

医院:

银行:

重新载入地图>>

查看大地图及详情>>

查看楼盘配套信息>>

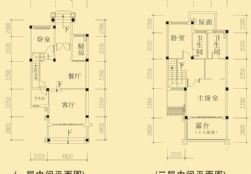
楼盘户型

恒大山水城户型图更多户型图>>

网友留言

给恒大山水城留言或咨询

您是不是在找....

更多>>

恒大山水城